Interimskindertagesstätte Stuttgart-Freiberg
Bauherr:
Landeshauptstadt Stuttgart, Hochbauamt 65-6, Hauptstätter Straße 66, 70178 Stuttgart
Bauleitung:
hammeskrause architekten, Krefelder Straße 32, 70376 Stuttgart
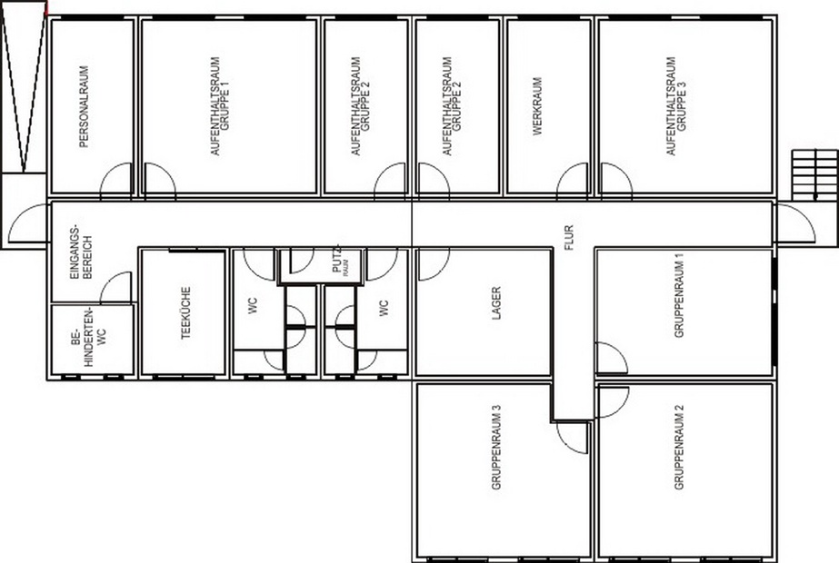
Die bisherige Tageseinrichtung genügt nicht mehr dem steigenden Anforderungen des Stadteils. An gleicher Stelle soll deshalb eine neue Kindertagesstätte entstehen. Dazu muss die bisherige Kindertagesstätte abgerissen werden. Während der Bauphase sind die Kinder in einer Interimskindertagesstätte untergebracht. Das Interimsgebäude verfügt über Gruppen und Aufenthaltsräume, Küche mit Einbauküche, WC und Behinderten-WC.
Grundfläche:
ca. 360 m²
Lieferzeit:
innerhalb 12 Wochen, inklusive Anschluss der Versorgungsleitungen, Erdarbeiten, Fundamente
Bauweise:
Containerbauwerk, 20 Container à 6,00 x 3,00 m, mit Schallschluckplatten an den Decken, sowie speziellen Linoleumbelag
